DOKUMENTY DO POBRANIA
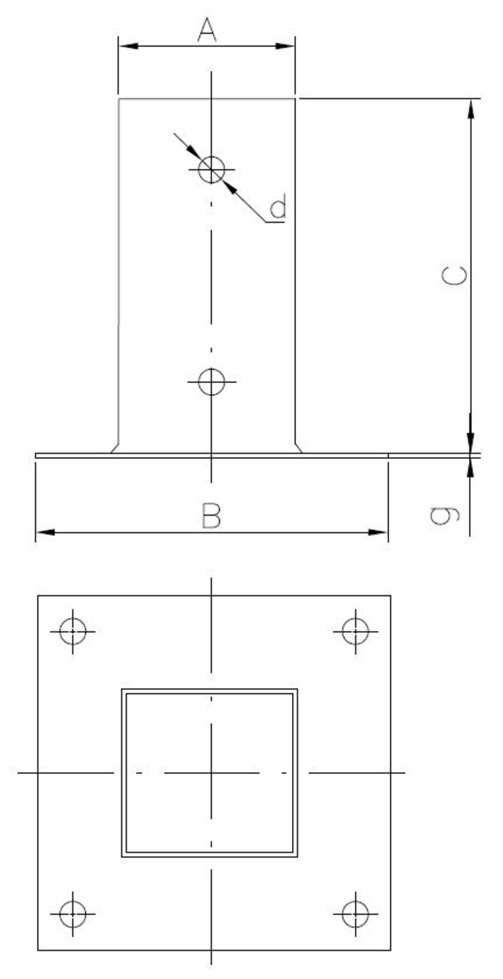
Podstawa słupa o podstawie prostokątnej
Podstawa słupa o podstawie prostokątnej to element konstrukcyjny, który znalazł zastosowanie w budownictwie, architekturze krajobrazu i innych dziedzinach, służący do stabilnego mocowania słupów, kolumn, ogrodzeń lub innych elementów konstrukcyjnych do powierzchni ziemi. Produkty te charakteryzują się podstawą w kształcie prostokąta, co zapewnia stabilność i równomierne rozkładanie obciążeń.
Zastosowanie:
- Architektura krajobrazu: Podstawy o podstawie prostokątnej są szeroko stosowane w architekturze krajobrazu do mocowania słupów ogrodzeniowych, oznakowanie, balustrady, bramy i inne elementy, które wymagają stabilnego mocowania do ziemi.
- Budownictwo: Wykorzystywane są w budownictwie do mocowania słupów, kolumn, balustrad, ścianek działowych i innych elementów konstrukcyjnych do powierzchni ziemi.
- Budownictwo ogrodów: Stosowane są w projektach ogrodowych i budowie ogrodzeń, gdzie równomierne i stabilne mocowanie jest kluczowe.
Korzyści:
- Zapewniają stabilne i równomierne mocowanie elementów konstrukcyjnych do ziemi.
- Odporność na warunki atmosferyczne i korozję gwarantuje długotrwałą wytrzymałość produktu.
- Różne rozmiary i konfiguracje otworów montażowych pozwalają dostosować produkt do różnych zastosowań.
- Zapewniają estetyczny wygląd i trwałość konstrukcji.
DOKUMENTY DO POBRANIA
- Grupa
- 6240
