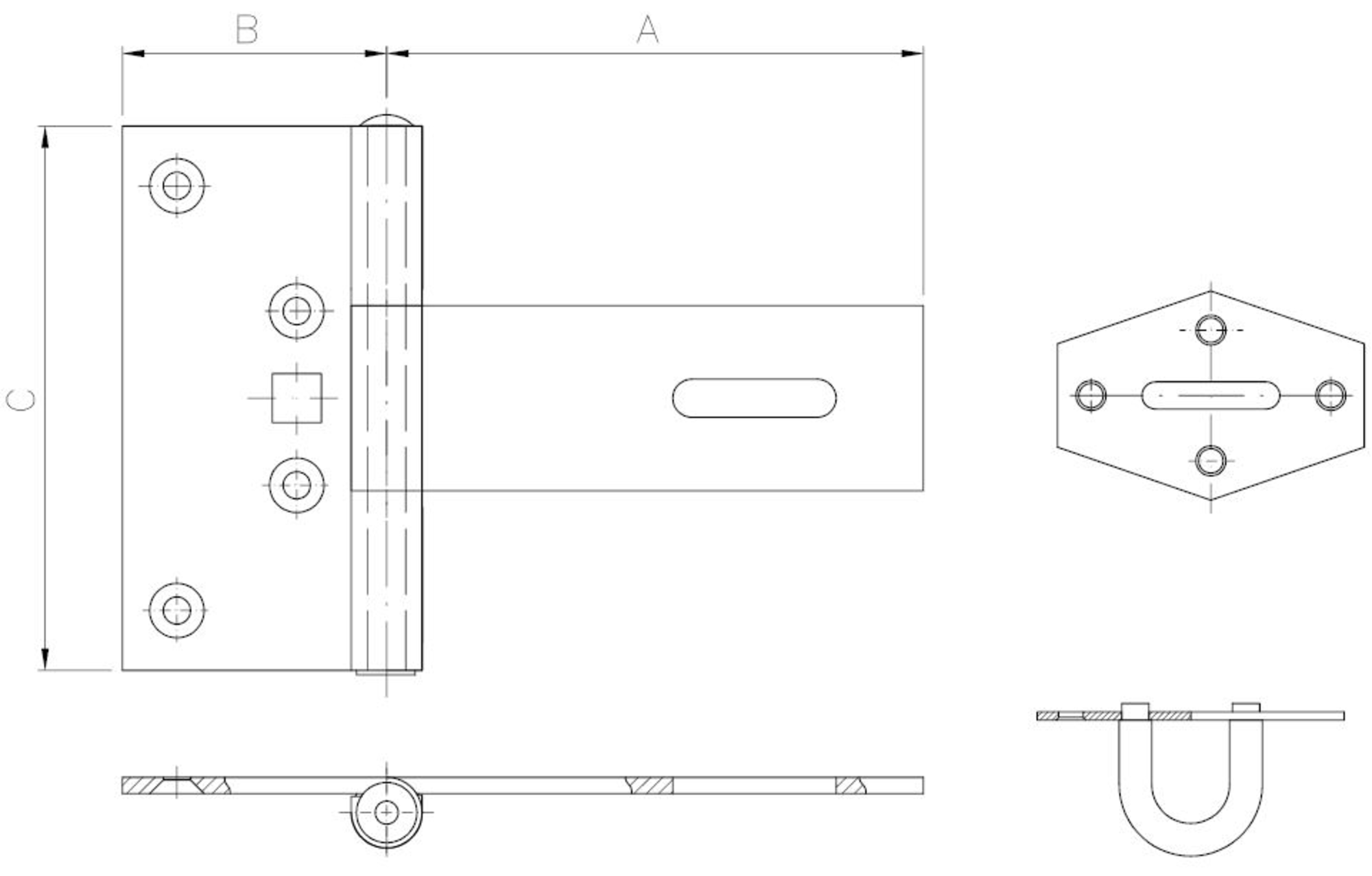
Zawias bramowy z zamknięciem
Zawias bramowy z zamknięciem to innowacyjne rozwiązanie łączące funkcje zawiasu bramowego z mechanizmem zamkowym. Oferuje solidność konstrukcji oraz automatyczne zamknięcie bramy po jej otwarciu, co przyczynia się do zwiększenia bezpieczeństwa i wygody użytkowania. Zastosowanie tego produktu sprawia, że bramy stają się bardziej efektywne i łatwe w obsłudze.
Zastosowanie:
- Bramy wjazdowe: Idealny do stosowania w bramach wjazdowych do posesji prywatnych, firm czy obiektów użyteczności publicznej.
- Bramy przesuwne: Skutecznie sprawdza się w bramach przesuwanych, automatycznie zamykając je po przejeździe pojazdu.
- Obiekty użyteczności publicznej: Stosowany w miejscach, gdzie istnieje potrzeba automatycznego zamknięcia bramy po przejściu pieszych lub pojazdów.
- Systemy monitoringu: Współpracuje z systemami monitoringu, ułatwiając kontrolę dostępu.
Korzyści:
- Automatyczne zamknięcie: Usprawnia codzienne użytkowanie, eliminując konieczność ręcznego zamykania bramy.
- Bezpieczeństwo: Zwiększa bezpieczeństwo, zapobiegając pozostawianiu otwartych bram.
- Uniwersalne zastosowanie: Nadaje się do różnych rodzajów bram, zarówno tradycyjnych, jak i przesuwanych.
- Trwałość: Materiały wysokiej jakości gwarantują trwałość produktu.
- Estetyczny design: Doskonale komponuje się z różnymi stylami architektonicznymi.
- Grupa
- 6813
